Charme & Wohngefühl im Wohngebiet "Auf dem Säer"! EFH mit Garten, Sauna, EBK und Doppel-Garage
- Titelbild
- Hausansicht + Doppel-Garage
- Hausansicht + Garten vorne
- Hausansicht + Garten hinten
- Luftbild
- EG: Treppe + Essbereich
- EG: Treppe + Essbereich
- EG: offene Wohnküche
- EG: Abstellraum
- EG: Terrasse
- EG: Wohnzimmer
- EG: Schlafzimmer
- EG: Balkon
- EG: Badezimmer
- DG: Kaminzimmer
- DG: Dachbodenzimmer
- DG: Badezimmer
- UG: Schlafzimmer 1 von 3
- UG: Schlafzimmer 2 von 3
- UG: Sauna

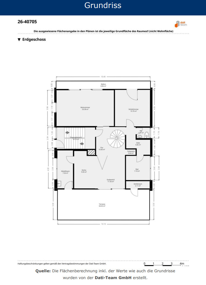
- Dieses großzügige Einfamilienhaus aus dem Jahr 1966 vereint architektonischen Charakter, ein außergewöhnliches Raumkonzept und ein attraktives Grundstück (ca. 706 m²) mit viel Potenzial. Mit rund 196 m² Wohnfläche sowie zusätzlichen ca. 103 m² Nutzfläche bietet die Immobilie ein vielseitiges Raumangebot.
Insgesamt stehen 8,5 Zimmer zur Verfügung, darunter fünf Schlafzimmer, wodurch sich das Haus flexibel an unterschiedliche Wohnbedürfnisse anpassen lässt – sei es für die Familie, das Arbeiten von zu Hause oder die Unterbringung von Gästen. Badezimmer auf allen Ebenen gewährleisten auch bei größerer Belegung einen komfortablen Alltag und unterstreichen die durchdachte Grundstruktur der Immobilie. Die vorhandene Doppel-Garage sorgt für eine komfortable Parksituation und rundet das Angebot ab.
Bereits beim Betreten des Hauses wird die architektonische Qualität dieser Immobilie spürbar. Die charakteristische Split-Level-Bauweise schafft ein spannendes Spiel aus Ebenen und Blickachsen und verleiht dem Haus eine besondere Großzügigkeit. Die Treppenanlage mit gefliesten Stufen prägt den Eingangsbereich und unterstreicht den Stil der Bauzeit. Sie vermittelt Solidität und Struktur, während die versetzten Ebenen eine klare, aber zugleich lebendige Raumaufteilung entstehen lassen. Einen reizvollen Kontrast hierzu bildet die offene, elegant geschwungene Wendeltreppe aus Holz, die ins Dachgeschoss führt. Mit ihrer leichten, fast skulpturalen Gestaltung wirkt sie wie ein architektonisches Gestaltungselement und verbindet die Ebenen auf stilvolle Weise.
Der großzügige Wohn- und Essbereich bildet das Herzstück des Hauses und besticht durch seine helle, einladende Atmosphäre. Große Fensterflächen lassen viel Tageslicht herein und schaffen einen harmonischen Übergang zum Außenbereich mit Blick in den Garten. Von hier aus gelangen Sie direkt auf eine der beiden Terrassen sowie in den geschmackvoll angelegten Garten, der das Haus sowohl zur Vorder- als auch zur Rückseite umrahmt.
Die beiden Terrassen und der Balkon erweitern den Wohnraum ins Freie und bieten vielfältige Möglichkeiten für entspannte Stunden oder gesellige Abende im Freien. Viel Spielraum für individuelle Gestaltungsideen eröffnen zudem die Gartenflächen – ob als grüner Rückzugsort, familienfreundlicher Außenbereich oder repräsentative Gartenanlage.
Die Wohnküche in weißer Optik fügt sich harmonisch in das offene Raumkonzept ein. Sie bietet mit ihren zahlreichen Schränken und großzügigen Arbeitsflächen viel Stauraum und Funktionalität. Eine halbhohe Abtrennung strukturiert den Bereich dezent und schafft gleichzeitig eine offene Verbindung zum Essbereich – ideal für kommunikatives Kochen und gesellige Abende.
Ein besonderes Highlight befindet sich im Dachgeschoss: Das großzügige Kaminzimmer mit sichtbarer Holzdecke schafft eine warme, behagliche Atmosphäre und bietet einen idealen Rückzugsort innerhalb des Hauses. Dieser Bereich eignet sich hervorragend als Wohnlounge, Atelier oder privater Rückzugsraum und verleiht dem Objekt zusätzlichen Charme und Individualität.
Auch das Untergeschoss überzeugt durch seine Vielseitigkeit. Neben klassischen Keller- und Abstellräumen stehen hier Wohnräume zur Verfügung, die vielfältig genutzt werden können. Eine hauseigene Sauna bietet zusätzlichen Komfort und die Möglichkeit zur Entspannung im eigenen Zuhause. Darüber hinaus eröffnet die vorhandene Flächenstruktur Potenzial zur Realisierung einer Einliegerwohnung, wodurch sich zusätzliche Nutzungsperspektiven ergeben.
Die Immobilie befindet sich insgesamt in einem dem Baujahr entsprechenden Zustand und sollte im Rahmen einer umfassenden Modernisierung auf einen zeitgemäßen Stand gebracht werden. Gleichzeitig bietet die solide Bausubstanz in Kombination mit der architektonischen Besonderheit eine hervorragende Grundlage, um ein individuelles und zeitgemäßes Zuhause zu schaffen und die vorhandenen Qualitäten dieses Hauses neu zu interpretieren. Flächen
- Wohnfläche: 196,38 m²
- Grundstücksfläche: 706 m²
- Nutzfläche: 103 m²
- Zimmer insgesamt: 8,5
- Schlafzimmer: 5
- Badezimmer: 3
- Separate WCs: 2
- Etagen: 3
- Garagenstellplätze: 2
- Balkone: 1
- Terrassen: 2
Zustand & Erschließung
- Baujahr: 1966
- Zustand: gepflegt
- Bauweise: Massiv
- Dachform: Satteldach
- Keller: voll unterkellert
Sonstiges
Wenn Sie Interesse an der angebotenen Immobilie haben, freuen wir uns sehr über Ihre Kontaktaufnahme.
Wichtige Hinweise:
+ Damit Sie ein möglichst vollständiges Raumbild bekommen, erstellen wir beispielhafte Grundrisse und Illustrationen.
+ Tragen Sie bitte in das Kontaktformular Ihre vollständigen Kontaktdaten wie Telefonnummer und E-Mail-Adresse ein. So können wir uns leichter zur Vereinbarung eines Besichtigungstermines mit Ihnen in Verbindung setzen.
+ Die Angaben in diesem Angebot basieren auf Informationen, die uns von Dritten (z. B. Eigentümern, Behörden, Hausverwaltung, etc.) zur Verfügung gestellt wurden. Diese Angaben wurden mit größter Sorgfalt geprüft und zusammengetragen. Dennoch können wir keine Gewähr für die Vollständigkeit, Richtigkeit und Aktualität der Inhalte übernehmen. Es obliegt dem Interessenten, die bereitgestellten Informationen eigenständig zu prüfen.
+ Bitte beachten Sie, dass bei einem Immobilienkauf die Erwerbsnebenkosten (Grunderwerbsteuer, Notar, Makler) in etwa 10 % aus dem Kaufpreis betragen. Planen Sie in Ihr Budget auch die eventuell notwendigen Renovierungskosten mit ein.
+ Unser Angebot ist freibleibend, Irrtum und Zwischenverkauf/vermietung vorbehalten. Die Grundlage unserer Tätigkeit sind unsere Allgemeinen Geschäftsbedingungen (AGB).
+ Sollte es bei Ihnen oder in Ihrem Bekanntenkreis Bedarf an einem fähigen und zielorientierten Immobilienmakler geben, unabhängig davon, ob es sich um eine Werteinschätzung, das Vermieten/Mieten oder Verkaufen/Kaufen einer Immobilie handelt, freuen wir uns sehr über eine Empfehlung.
+ Auch in eigener Sache sind wir immer als fairer Käufer an Immobilienangeboten interessiert.
+ Besuchen Sie uns und unsere Angebote auch auf unserer Homepage unter www.hahnimmo.com
Hahn Immobilien GmbH
Menschen · Heimat · Möglichkeiten- Immobilie ist verfügbar ab: ab sofort
Das familienfreundliche Einfamilienhaus verfügt über folgende gepflegte Ausstattungsmerkmale:
Details:
+ Heizungsart: Öl-Zentralheizung
+ Fenster: überwiegend isolierverglaste Holzfenster
+ Böden: Parkett, Laminat, Fliesen, Teppich
+ Küche: Einbauküche in weißer Optik mit elektrischen Großgeräten (bereits im Kaufpreis inbegriffen)
+ Bäder: auf allen Ebenen vorhanden
+ Garten: angelegte Gartenflächen vor und hinter dem Haus
+ 2 Terrassen
+ 1 Balkon
+ Doppel-GarageSonstiges:
+ viel Nutzfläche
+ Einliegerwohnung kann realisiert werden
+ Abstellraum mit Einbauschränken neben Küche
+ Kaminzimmer im DG
+ Sauna
+ uvm.Das Haus ist sanierungsbedürftig. Die Sanierung folgender Gewerke ist daher zu empfehlen und anzuraten:
· Dach
· Heizung
· Fassade
· Fenster
· Elektrik
· Leitungen
· Bäder
· Wand- und BodenbelägeSind Sie neugierig? Dann freuen wir uns umso mehr, Ihnen bei einem persönlichen Termin vor-Ort dieses besondere Einfamilienhaus präsentieren zu dürfen – Anrufen lohnt sich!
- Heizungsart: Zentralheizung
- Befeuerung: Öl
- Bodenbelag: Fliesen, Teppich, Parkett, Laminat
- Küche: Einbauküche, Offene Küche
- Gartennutzung
- Gäste-WC
- Kabel/Sat-TV
- Wasch-/Trockenraum
- Energieausweis-Art: Bedarf
- Energieausweis gültig bis: 08.04.2026
- Endenergiebedarf: 221,54 kWh/(m²*a)
- Primärenergieträger: Öl
- Energieeffizienzklasse: G
- Baujahr (Energieausweis): 1966
- Energieausweis-Jahrgang: ab Mai 2014
- Energieausweis-Gebäudeart: Wohngebäude
Endenergiebedarf dieses Gebäudes221,54 kWh/(m²·a)A+ABCDEFGH0255075100125150175200225>250Das schöne Einfamilienhaus befindet sich in familienfreundlicher Wohnlage von Nürtingen in einer einträglichen Hanglage im beliebten Wohnviertel „Auf dem Säer“. Die Lage zeichnet sich durch ihre gelungene Verbindung aus naturnahem Wohnen, hoher Lebensqualität und gleichzeitig sehr guter Anbindung an die wirtschaftsstarke Region Stuttgart aus.
Nahezu am Ortsrand gelegen, genießen Sie hier eine besonders angenehme Wohnatmosphäre mit viel Ruhe, wenig Durchgangsverkehr und einem hohen Maß an Privatsphäre – ideale Voraussetzungen für entspanntes Wohnen. Felder, Wiesen und Spazierwege befinden sich in unmittelbarer Nähe und locken zu vielfältigen Freizeitaktivitäten in der Natur.
Trotz der ruhigen und naturnahen Lage sind alle Einrichtungen des täglichen Bedarfs schnell erreichbar. Die Nürtinger Innenstadt mit ihrem charmanten, historischen Stadtkern bietet eine Vielzahl an Einkaufsmöglichkeiten, Cafés, Restaurants sowie ein breites kulturelles Angebot. Kindergärten, Schulen aller Bildungsstufen sowie Ärzte und Apotheken befinden sich in gut erreichbarer Nähe und machen den Standort besonders für Familien attraktiv.
Nürtingen überzeugt durch seine hervorragende Infrastruktur und die attraktive Lage in der Metropolregion Stuttgart. Über die nahegelegenen Bundesstraßen und die A8 sind Esslingen, Kirchheim unter Teck und die Landeshauptstadt Stuttgart schnell erreichbar. Der nahegelgene Bahnhof Nürtingen bietet regelmäßige Anbindungen im Regionalverkehr sowie Anschluss an das S-Bahn-Netz der Region. Ergänzt wird dies durch die gute Erreichbarkeit des Flughafens Stuttgart, der in kurzer Fahrzeit zur Verfügung steht.
Das Sport- und Freizeitangebot in Nürtingen und Umgebung ist vielfältig und bietet für jede Altersgruppe zahlreiche Möglichkeiten. Neben verschiedenen Sportvereinen, Fitnessstudios und einem Hallen- sowie Freibad laden die umliegenden Natur- und Landschaftsschutzgebiete zu Aktivitäten wie Wandern, Radfahren oder Joggen ein. Die Nähe zur Schwäbischen Alb eröffnet darüber hinaus weitere attraktive Ausflugsziele für Naturliebhaber und Outdoor-Begeisterte.
- Distanz zum Flughafen: 20,0 km
- Distanz zum Fernbahnhof: 32,0 km
- Distanz zur Autobahn: 6,5 km
- Distanz zu U/S-Bahn-Haltestelle: 0,7 km
- Distanz zu Bushaltestelle: 0,1 km
- Distanz zum Kindergarten: 0,5 km
- Distanz zur Grundschule: 1,2 km
- Distanz zur Realschule: 1,5 km
- Distanz zum Gymnasium: 0,9 km
- Distanz zum Zentrum: 1,0 km
- Distanz zu Einkaufsmöglichkeiten: 0,3 km
- Kaufpreis: 698.000 €
- Käuferprovision: 3,57 % inkl. gesetzl. MwSt. aus dem Kaufpreis













































